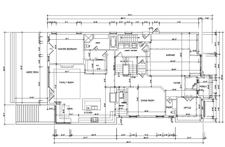
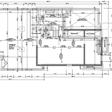
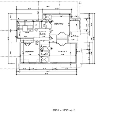
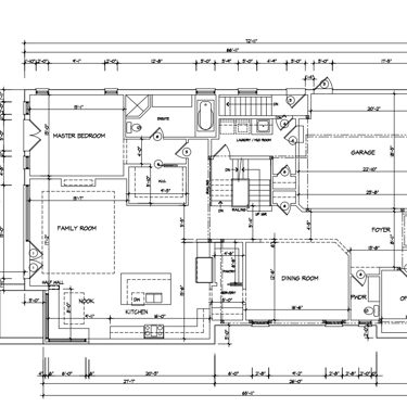
108 Manitoba St.
Early involvement in the residential design process working alongside a licensed architect. Participated in client-side decision making and gained exposure to drafting fundamentals and project coordination.


Experience
This experience played a key role in developing my initial interest in architecture and understanding how design concepts evolve into real projects.


Contributions
• Assisted in design discussions and spatial planning decisions
• Learned basic drafting concepts and architectural workflow
• Observed project development from concept to execution
Gallery




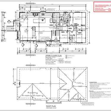
70 Burkholder St.
A residential renovation and expansion project where I contributed both to the design process and hands-on construction work. Collaborated with architects during planning and gained direct experience in how design decisions are implemented on-site.


Experience
In addition to design involvement, I participated in multiple stages of construction, providing a strong understanding of materials, installation processes, and real-world building conditions.


Contributions
• Assisted in client-side design decisions and layout development
• Installed windows and exterior siding as part of construction work
• Participated in demolition, painting, and general site work
• Developed understanding of construction sequencing and detailing
Gallery








1819 Appleview Rd.
Ongoing interior renovation project where I developed floor plans independently and contributed to layout planning. This project strengthened my ability to translate design ideas into functional spatial arrangements.
Experience
While the project is being executed through hands-on construction, it continues to provide insight into how design decisions impact real-world building conditions.
Contributions
• Assisted in client-side design decisions and layout development
• Installed windows and exterior siding as part of construction work
• Participated in demolition, painting, and general site work
• Developed understanding of construction sequencing and detailing
